Журнал ПОШ ИТ

Текущее состояние

Выжимка по строительной части из комплексного аудита жилого дома по заказу ПОШ

Основные выводы

  • Дом введен в эксплуатацию в 2008 году
  • Дом расположен на участке площадью 442 м2
  • ВРИ участка "Многоквартирный жилой дом"
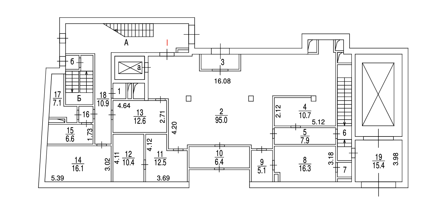
  • Общая площадь дома 2,117 м2
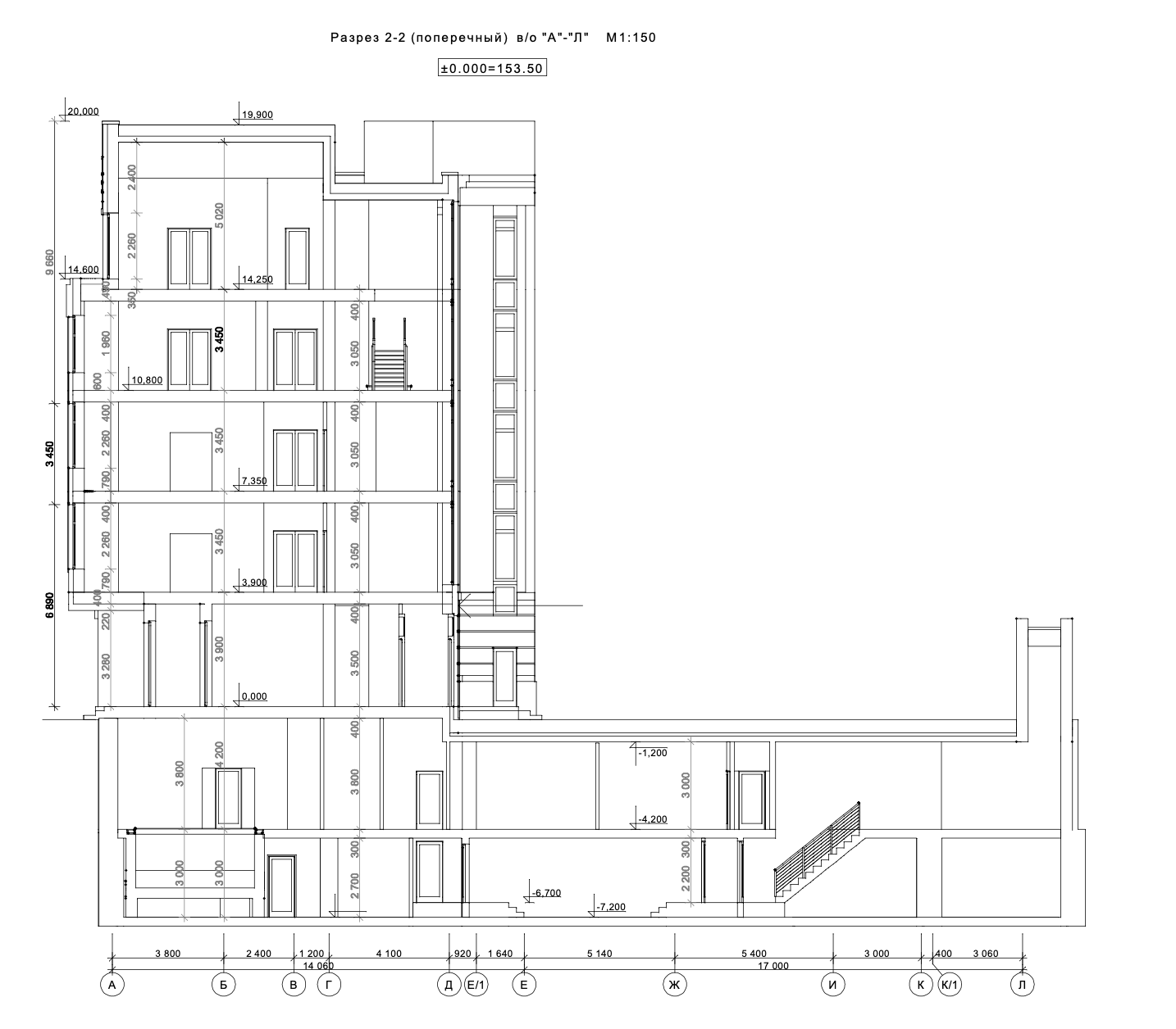
  • В доме 5 наземных и 2 подземных этажах
  • Сегодня в доме 3 квартиры общей площадью 1,050 м2
  • В подземной части расположены паркинг на 8 м/м и подземный бассейн 15 х 4 м
  • Высота на 1-м этаже 3.5 м, на 2-4 этажах 3.05 м, на 5-м этаже 5.02 м
  • Этажи со 2-го по 5-й находятся в состоянии shell & core
  • Первый этаж, бассейн и паркинг находятся в состоянии финишной отделки
  • Дом подключен ко всем городским системам снабжения
  • В доме функционируют все инженерные системы
  • Собрана исполнительная и архивная документация по строительству дома
  • Проект редевелопмента предполагает надстройку 6-го этажа. Девелопер провел предварительные переговоры с Городом. Вероятность получения разрешения оценивается выше 80%.

Земельный участок

Дом

Первый этаж

Жилые этажи

Бассейн

Паркинг

Инженерные системы
План кровли